Ein Modellprojekt zur Zukunft der Stadt
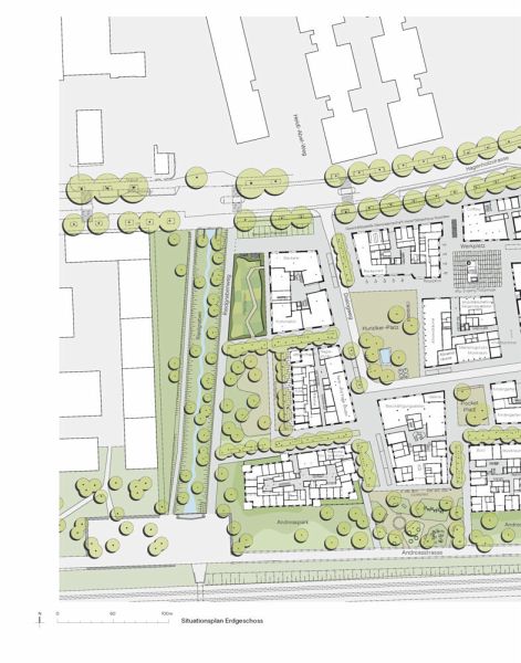
Die Arealentwicklung 'mehr als wohnen' im Zürcher Norden ist ein Leuchtturmprojekt für nachhaltiges genossenschaftliches Wohnen. Die dreizehn Neubauten bieten Wohn- und Arbeitsraum für mehr als 1100 Menschen, sie weisen den Weg für künftiges urbanes Zusammenleben: Neben neuen Typologien für Familien-, Alters-, und Cluster-Wohnungen bietet dieser Stadtbaustein umfangreiche Serviceangebote wie ein Gästehaus, ein Restaurant und eine Mobilitätsstation. Darüber hinaus experimentieren die Planer mit neuen Baumaterialien und innovativen energetischen Konzepten.
Eine Initiative von 30 Zürcher Wohnbaugenossenschaften hat seit 2007 das Projekt als Innovationsplattform entwickelt. Im Zentrum des Planungsprozesses steht der Dialog zwischen den Beteiligten. Zudem stellt sich das Projekt den drängenden Aufgaben, jenseits der bekannten Energielabel energie- und ressourcenschonend zu bauen und zu wohnen.
Das Buch verbindet die Elemente eines Architekturbuchs mit sozialwissenschaftlichen Analysen: Eine Plansammlung vom Masterplan über Wohnungsgrundrisse bis hin zu ausgewählten Details dokumentiert die realisierten Bauten. Des Weiteren erläutern die beteiligten Architekten, Fachplaner, Genossenschaftler und Fachleute ihre Erfahrungen und geben Einblick in die genossenschaftlichen und planerischen Hintergründe. Sie zeigen, wie sich diese vorbildliche Arealentwicklung in den Diskurs und die Realität des aktuellen Städtebaus einordnet. Über dies diskutieren sie, wie durch städtebauliche Planung eine zukunftsfähige Stadtentwicklung möglich ist.
Report über ein dichtes, sozial und energetisch nachhaltiges Wohnquartier Bauten von Duplex Architekten, Futurafrosch, Müller Sigrist Architekten, Pool Architekten und Miroslav Sik Sonderband der Edition Wohnen mit dem ETH Wohnforum
Die Arealentwicklung 'mehr als wohnen' im Zürcher Norden ist ein Leuchtturmprojekt für nachhaltiges genossenschaftliches Wohnen. Die dreizehn Neubauten bieten Wohn- und Arbeitsraum für mehr als 1100 Menschen, sie weisen den Weg für künftiges urbanes Zusammenleben: Neben neuen Typologien für Familien-, Alters-, und Cluster-Wohnungen bietet dieser Stadtbaustein umfangreiche Serviceangebote wie ein Gästehaus, ein Restaurant und eine Mobilitätsstation. Darüber hinaus experimentieren die Planer mit neuen Baumaterialien und innovativen energetischen Konzepten.
Eine Initiative von 30 Zürcher Wohnbaugenossenschaften hat seit 2007 das Projekt als Innovationsplattform entwickelt. Im Zentrum des Planungsprozesses steht der Dialog zwischen den Beteiligten. Zudem stellt sich das Projekt den drängenden Aufgaben, jenseits der bekannten Energielabel energie- und ressourcenschonend zu bauen und zu wohnen.
Das Buch verbindet die Elemente eines Architekturbuchs mit sozialwissenschaftlichen Analysen: Eine Plansammlung vom Masterplan über Wohnungsgrundrisse bis hin zu ausgewählten Details dokumentiert die realisierten Bauten. Des Weiteren erläutern die beteiligten Architekten, Fachplaner, Genossenschaftler und Fachleute ihre Erfahrungen und geben Einblick in die genossenschaftlichen und planerischen Hintergründe. Sie zeigen, wie sich diese vorbildliche Arealentwicklung in den Diskurs und die Realität des aktuellen Städtebaus einordnet. Über dies diskutieren sie, wie durch städtebauliche Planung eine zukunftsfähige Stadtentwicklung möglich ist.
Report über ein dichtes, sozial und energetisch nachhaltiges Wohnquartier Bauten von Duplex Architekten, Futurafrosch, Müller Sigrist Architekten, Pool Architekten und Miroslav Sik Sonderband der Edition Wohnen mit dem ETH Wohnforum
"Das Buch eignet sich nicht nur für Planer und für die "Macher" in Baugesellschaften und -genossenschaften, sondern auch für private Bauherren, die sich Gedanken über das Wohnen von morgen machen und die darüber nachdenken, gemeinsam mit anderen eine Bauherrengemeinschafl zu gründen um ihre Wohnwünsche zu verwirklichen."
VPB Verband Privater Bauherren am 25.02.2017
VPB Verband Privater Bauherren am 25.02.2017












