Städtische Reihenhäuser entstanden in Europa ab dem 17. Jahrhundert. Im Regelfall zwei- bis dreigeschossig und mit einem Garten auf der Rückseite ausgestattet, bildeten sie den städtischen Block. In Brüssel hat diese bürgerliche Wohnform eine besonders vielgestaltige und bis heute inspirierende Ausformung erfahren. Diese Publikation analysiert diese Typologie, zeigt aber auch ihre Weiterentwicklung in anderen Formen des Wohnungsbaus in insgesamt 121 ausgewählten Beispielen. So entstehen ein breit angelegtes Panorama sowie eine Architektur- und Entstehungsgeschichte der Stadt Brüssel.
Die erweiterte Neuausgabe enthält ein Kapitel von Kristiaan Borret, dem ehemaligen "Bouwmeester" der Stadt. 13 neue Beispiele wurden hinzugefügt und der Inhalt wurde durchweg aktualisiert. Ein Projektregister erlaubt das rasche Auffinden von Gebäuden.
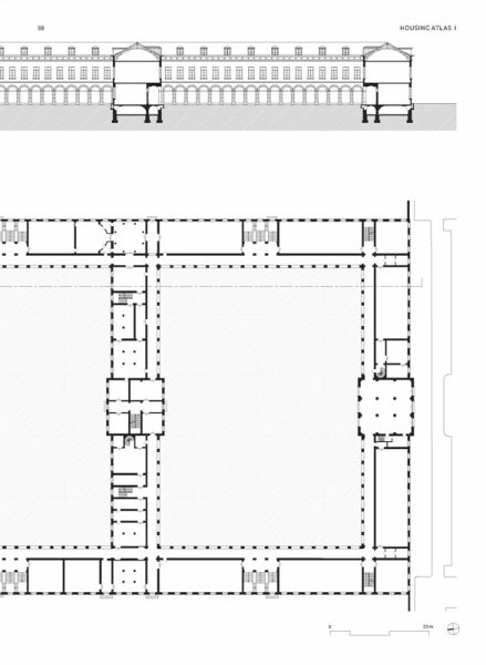
Mit vier Fotoessays des bekannten Fotografen Maxime Delvaux Sämtliche Pläne wurden in Standardmaßstäben eigens für die Publikation gezeichnet Ein Atlas vorbildlicher historischer wie zeitgenössischer Wohnbauten als erweiterte Neuausgabe
Die erweiterte Neuausgabe enthält ein Kapitel von Kristiaan Borret, dem ehemaligen "Bouwmeester" der Stadt. 13 neue Beispiele wurden hinzugefügt und der Inhalt wurde durchweg aktualisiert. Ein Projektregister erlaubt das rasche Auffinden von Gebäuden.
Mit vier Fotoessays des bekannten Fotografen Maxime Delvaux Sämtliche Pläne wurden in Standardmaßstäben eigens für die Publikation gezeichnet Ein Atlas vorbildlicher historischer wie zeitgenössischer Wohnbauten als erweiterte Neuausgabe
"On trouve ici une pléthore de points de référence qui permettent de réfléchir à ce que l'avenir pourrait réserver. Quiconque voudra désormais parler de l'habitat « typiquement bruxellois » ne pourra que difficilement passer à côté de cet ouvrage." (Pieter T'Jonck in: https://www.a-plus.be/fr/review/lhabitat-a-bruxelles-hier-et-demain/ (24.05.2023))
"Je krijgt hier een overvloed aan referentiepunten die toelaten na te denken over waar het in de toekomst heen kan gaan. Wie het nog over 'typisch Brusselse' huisvesting wil hebben zal dit werk hoe dan ook moeilijk kunnen negeren." (Pieter T'Jonck in: https://www.a-plus.be/nl/review/wonen-in-brussel-geschiedenis-en-toekomst/ (24.05.2023))
***
"The book offers a broad panorama and a history of the architecture and urban development of Brussels." (https://uclouvain.be/fr/facultes/loci/brussels-housing-atlas-of-residential-building-types.html (25.07.2023))
***
"The book provides an insight into the variety of housing forms in Brussels over the years. [...] This superimposition of typical Belgian housing solutions is a formal and poetic chaos, but it could also provide answers to future challenges, such as the diversification of the demography. May this book be a tool to understand, perpetuate and invent new forms of living in Belgium." (https://welovebrussels.org/2023/07/monography-architecture-housing-brussels/ (25.07.2023))
"Je krijgt hier een overvloed aan referentiepunten die toelaten na te denken over waar het in de toekomst heen kan gaan. Wie het nog over 'typisch Brusselse' huisvesting wil hebben zal dit werk hoe dan ook moeilijk kunnen negeren." (Pieter T'Jonck in: https://www.a-plus.be/nl/review/wonen-in-brussel-geschiedenis-en-toekomst/ (24.05.2023))
***
"The book offers a broad panorama and a history of the architecture and urban development of Brussels." (https://uclouvain.be/fr/facultes/loci/brussels-housing-atlas-of-residential-building-types.html (25.07.2023))
***
"The book provides an insight into the variety of housing forms in Brussels over the years. [...] This superimposition of typical Belgian housing solutions is a formal and poetic chaos, but it could also provide answers to future challenges, such as the diversification of the demography. May this book be a tool to understand, perpetuate and invent new forms of living in Belgium." (https://welovebrussels.org/2023/07/monography-architecture-housing-brussels/ (25.07.2023))


















