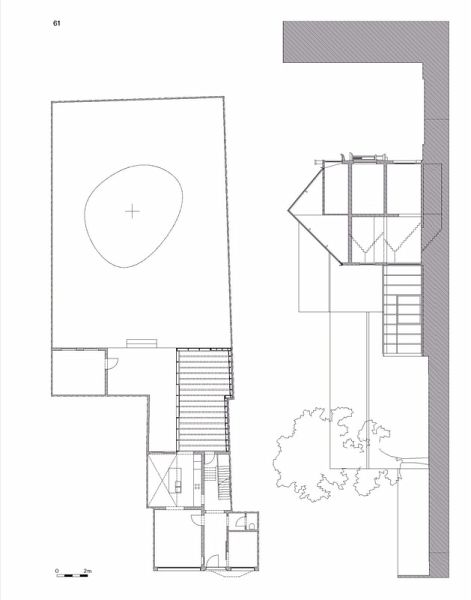
Kann ein Haus gleichzeitig ein Zuhause, ein Prototyp und eine kritische Antwort auf die Realität sein? How Did We Get Here? zeigt, wie die Wohnprojekte von BLAF architecten die Spannungen zwischen der Zersiedelung der Vorstädte, Energievorschriften, konventionellen Bausystemen und den Wohnwünschen der Kunden bewältigen. Aus der Auseinandersetzung mit der Bedeutung von Materialität, Ressourcen und Produktion, Energieeffizienzstandards und -prinzipien, und Konstruktionssystemen aus der Gestaltungsperspektive haben BLAF architecten Konzepte entwickelt, die zeigen, wie das Büro nach plausiblen Wegen in die Zukunft sucht und versucht, Positionen zu Erschwinglichkeit, Leistung, Anpassungsfähigkeit, Ästhetik und Kreislaufwirtschaft miteinander zu vereinbaren.
BLAF architecten bietet keine vorgefertigten Antworten, sondern einen Kompass für diejenigen, die an die Architektur als eine Praxis des und für den Übergang glauben.
Diese erste Monografie über BLAF architecten zeichnet 20 Jahre architektonische Praxis in Zeiten des Klimawandels nach. Eine Auswahl von 24 Häusern und kritischen Essays von Helga Blocksdorf, Maarten Van Den Driessche and Lieven Nijs BLAF architecten stützt sich auf die experimentelle Kraft kleiner Projekte und die iterative Natur des Designs. Fotos von Stijn Bollaert
BLAF architecten bietet keine vorgefertigten Antworten, sondern einen Kompass für diejenigen, die an die Architektur als eine Praxis des und für den Übergang glauben.
Diese erste Monografie über BLAF architecten zeichnet 20 Jahre architektonische Praxis in Zeiten des Klimawandels nach. Eine Auswahl von 24 Häusern und kritischen Essays von Helga Blocksdorf, Maarten Van Den Driessche and Lieven Nijs BLAF architecten stützt sich auf die experimentelle Kraft kleiner Projekte und die iterative Natur des Designs. Fotos von Stijn Bollaert













![Ossip Klarwein: Vom 'Kraftwerk Gottes' zur Knesset [Deutsche Ausgabe] Ossip Klarwein: Vom 'Kraftwerk Gottes' zur Knesset [Deutsche Ausgabe]](https://bilder.buecher.de/produkte/73/73871/73871399m.jpg)